Skice gradjevinskih kontejnera - unapred spremna rešenja

Pripremili smo Vam skice kontejnera kao idejna rešenja i ukoliko neka od naših skica odgovara Vašim potrebama možete odabrati neko od unapred pripremljenoh rešenja.

Takođe možemo korigovati već napravljene skice prema vašim željama i potrebama.

Pošalji upit za dobijanje ponude
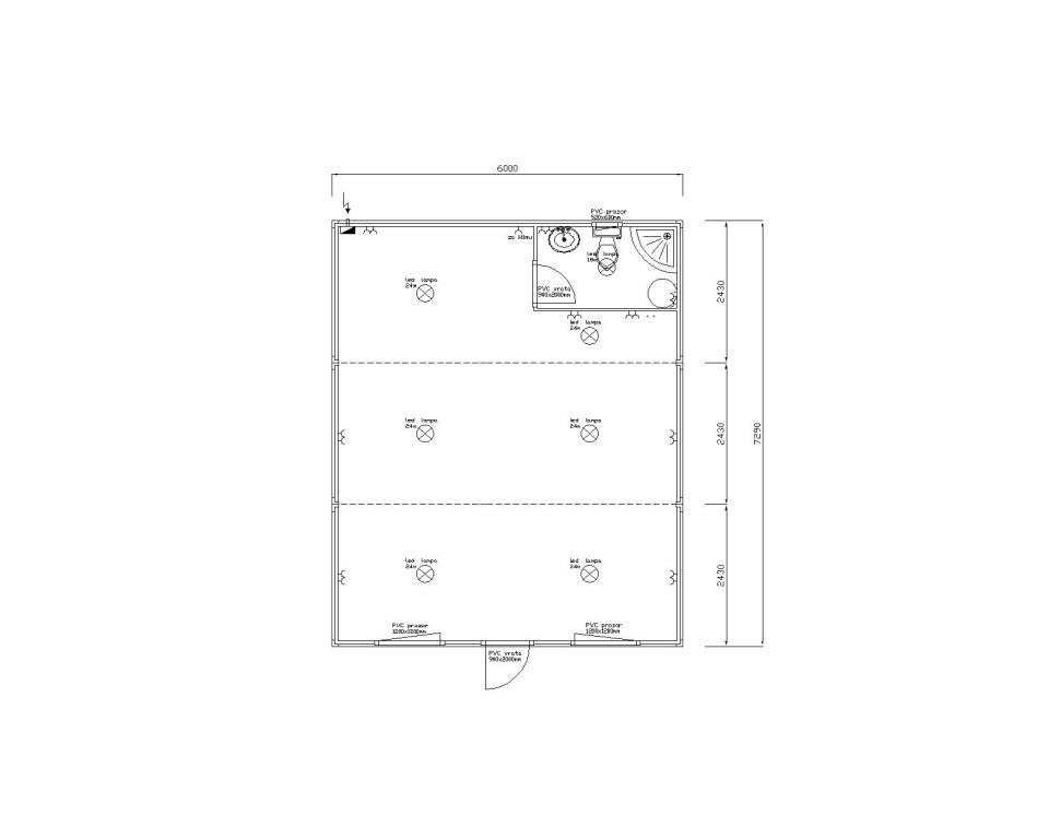
Skica stambenog tripleksa 6,00x7,29x2,60m sa kupatilom

Skica stambenog tripleksa 6,00x7,29x2,60m sa kupatilom

Skica stambenog kontejnera - tripleksa 6,00x7,29x2,60m sa kupatilom i izvodima za kuhinju

Saznaj više

Skica kancelarijski kontejnerski blok

Skica kancelarijski kontejnerski blok

Skica kontejnerskog kancelarijskog bloka 7,29x6,00x2,60m sastavljenog iz tri kontejnerske jednice 6,00x2,43x2,60m

Saznaj više

Skica kontejnerskog bloka sastavljenog iz četiri kontejnera

Skica kontejnerskog bloka sastavljenog iz četiri kontejnera

Skica gradjevinskog kontejnereskog bloga ili naselja sa toaletom

Saznaj više

skica modularnog gradjevinskog kontejnerskog bloka, naselja

skica modularnog gradjevinskog kontejnerskog bloka, naselja

skica modularnog gradjevinskog kontejnerskog bloka, kontejnersko naselje 20,00x6,00x2,60m sastavljeno iz osam jedinica 6,00x2,50x2,60m

Saznaj više

Modularni gradjeviski kontejnerski blok-kontejnersko naselje

Modularni gradjeviski kontejnerski blok-kontejnersko naselje

Modularni gradjevinski kontejnerski blok sastavljen iz više kontejnerskih jedinica u jedinstveno kontejnersko naselje.

Saznaj više